富山の賃貸物件探しは、サンホームにおまかせください!
事務所 婦中町速星テナントビル 2号室
| 賃料 | 242,000円 | 管理費等 | 0 円 |
|---|---|---|---|
| 敷金 | 440,000円 | 礼金 | 242,000円 |
| 交通 |
JR高山本線 速星/徒歩14分
JR高山本線 婦中鵜坂/徒歩30分 JR高山本線 千里/徒歩65分 |
所在地 | 富山県富山市婦中町速星1924番地5 地図を見る |
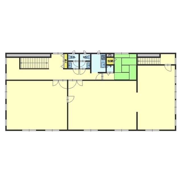
| 間取 | 事業 | 専有面積 | 220m² |
視認性良し!事務所におすすめです!
建物情報
- 物件名
- 婦中町速星テナントビル
- 建築構造
- 鉄骨造
- 築年月
- 2001年10月
- 階建
- 3階建
- 総戸数
- 0戸
- 住所
- 富山県富山市婦中町速星1924番地5
- 沿線・駅
-
JR高山本線 速星/徒歩14分
JR高山本線 婦中鵜坂/徒歩30分
JR高山本線 千里/徒歩65分
部屋情報
- 賃料
- 242,000円
- 共益費
- 0円
- 敷金
- 440,000円
- 償却金/敷引
- なし
- 礼金
- 242,000円
- 保険
- 要確認
- 入居可能日
- 要確認
- 契約期間
- 2年
- 取引態様
- 一般媒介
- 借家区分
- 普通賃貸借
- 部屋(区画)名称
- 2
- 階/方角
- 2階/向
- 間取
- 事業
- 専有面積
- 220m²
- 駐車場
- 有 7,700円
- 町内会費
- -
- リフォーム
- -
- リノベーション
- -
- 設備
- ・プロパンガス ・上水道 ・下水道
- こだわり内容
- -
- 備考
- 分割貸し 駐車場は縦列7,000円で3区画まで契約可能(要相談) 連帯保証人要(審査により保証会社の可能性あり) 施設使用料(光熱費)定額30,000円 敷金・施設使用料は業種により要相談 事務所用途
- 情報更新日
- 2026/03/19
- 次回更新予定日
- 2026/04/30













